Vivienda Campolivar

Esta vivienda se sitúa en Campolivar, una de las urbanizaciones del área metropolitana de Valencia. Se trata de una vivienda realizada mediante paneles arquitectónicos estructurales, que permiten levantar la estructura de la vivienda al mismo tiempo, que proporciona una fachada exterior. Esto permite crear una vivienda con una gran resistencia y rigidez estructural al mismo tiempo que acelera notablemente los tiempos de construcción.

 

  • Ingeniería de @DeliProGal
  • Arquitecto: Arquitectura Torres y Asociados S L P
  • Fabricante: Prefabricados Zone
  • Producto: Paneles estructurales de Hormigón.

RENDERS

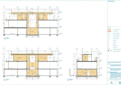
EJEMPLOS DE PLANOS

RESULTADO FINAL DE OBRA

MODELO DIGITAL